Designer villa for sale in El Paraíso
Designer villa for sale in El Paraíso. Located on Estepona’s New Golden Mile, this contemporary villa perfectly combines modern style, functionality and a privileged location. Just a 10-minute drive from Puerto Banús and with easy access to shops, restaurants and a nearby international school, this property represents an excellent opportunity for those seeking a comfortable and luxurious life on the Costa del Sol.
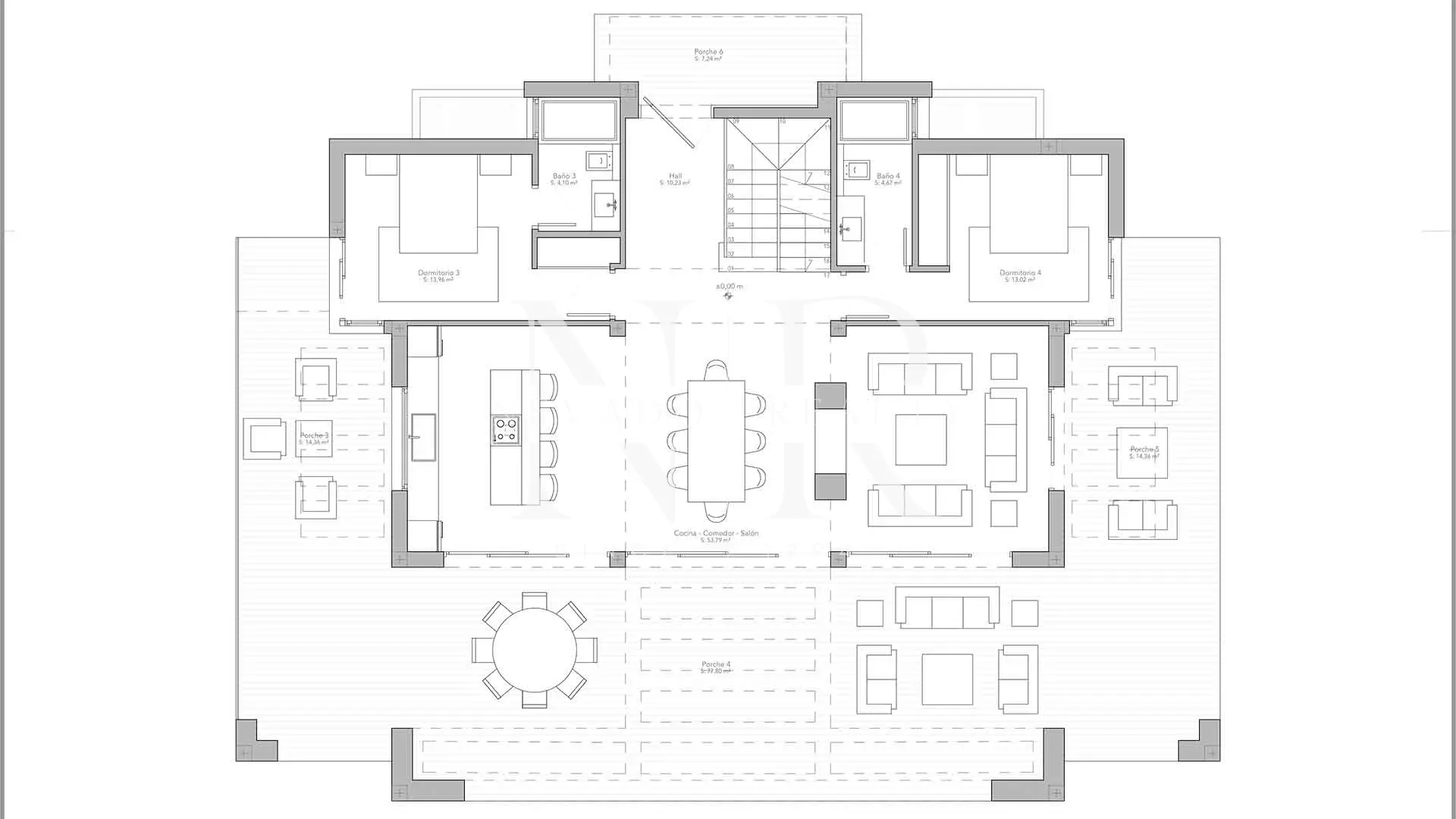
The property has six spacious bedrooms and six full bathrooms, distributed in bright and well-thought-out spaces. The design is by the prestigious architect Pedro Iraburu Elizalde, who has created a residence that stands out for its elegant architecture and functional layout. The common areas, such as the living room and open-plan kitchen, are flooded with natural light thanks to their south-west orientation, ensuring sunshine throughout the day and spectacular sunsets.
The exterior is designed to make the most of the Mediterranean climate. It features a private heated swimming pool, a relaxing jacuzzi and a barbecue area perfect for social gatherings or family dinners. For leisure and wellness, the villa also offers a fully equipped gym and a private cinema room. In addition, it has an underground garage with space for three vehicles.
The Atalaya International School and San José School are a short drive away, and Laude San Pedro International College is only 9 minutes away, as are magnificent golf courses such as Atalaya Golf & Country Club and Paraiso Golf Club.
This property is for sale through this estate agency with over 30 years of experience in Marbella Centre and the Golden Mile.
- Reference
- 163-04551P
- Type
- Villa
- Location
- El Paraiso, Estepona
- Beds
- 6
- Baths
- 6
- En suite baths
- 6
- Built m²
- 582
- Plot m²
- 802
- Pool
- Private
- Garden
- Private
- Garage
- Private
- Garbage
- 204 €
- Ibi
- 1.891 €
- Construct year
- 2.022
- Orientation
- SO
Additional Features
- Air conditioning
- Barbecue
- Brand new
- Close to golf
- Close to schools
- Country view
- Covered terrace
- Excellent condition
- Fireplace
- Fully fitted kitchen
- Fully furnished
- Garden view
- Glass Doors
- Guest toilet
- Gym
- Jacuzzi
- Mountain view
- Mountainside
- Parking included
- Pool view
- Porcelain floors
- Private terrace
- Uncovered terrace
Similar Properties
Completely renovated villa for sale in Atalaya Golf
- 5 Beds,
- 6 Baths,
- 1.843 m² Plot,
- 934 m² Built
Newly built villa for sale in La Resina Golf
- 4 Beds,
- 4 Baths,
- 1.097 m² Plot,
- 745 m² Built
Modern villa for sale in El Paraíso
- 5 Beds,
- 5 Baths,
- 808 m² Plot,
- 656 m² Built
Newly built villa in El Paraíso for sale
- 5 Beds,
- 5 Baths,
- 807 m² Plot,
- 628 m² Built


