Villa en première ligne de golf à vendre à Nueva Andalucía
Villa en première ligne de golf à vendre à Nueva Andalucía. Située au cœur de Nueva Andalucía, l’un des quartiers résidentiels les plus prestigieux de la Costa del Sol, elle a été conçue par le célèbre architecte Francisco Martínez Galván. Elle allie style méditerranéen moderne, fonctionnalité et qualité de construction exceptionnelle.
Son emplacement privilégié offre une grande intimité et un style de vie sophistiqué dans un environnement paisible et bien desservi.
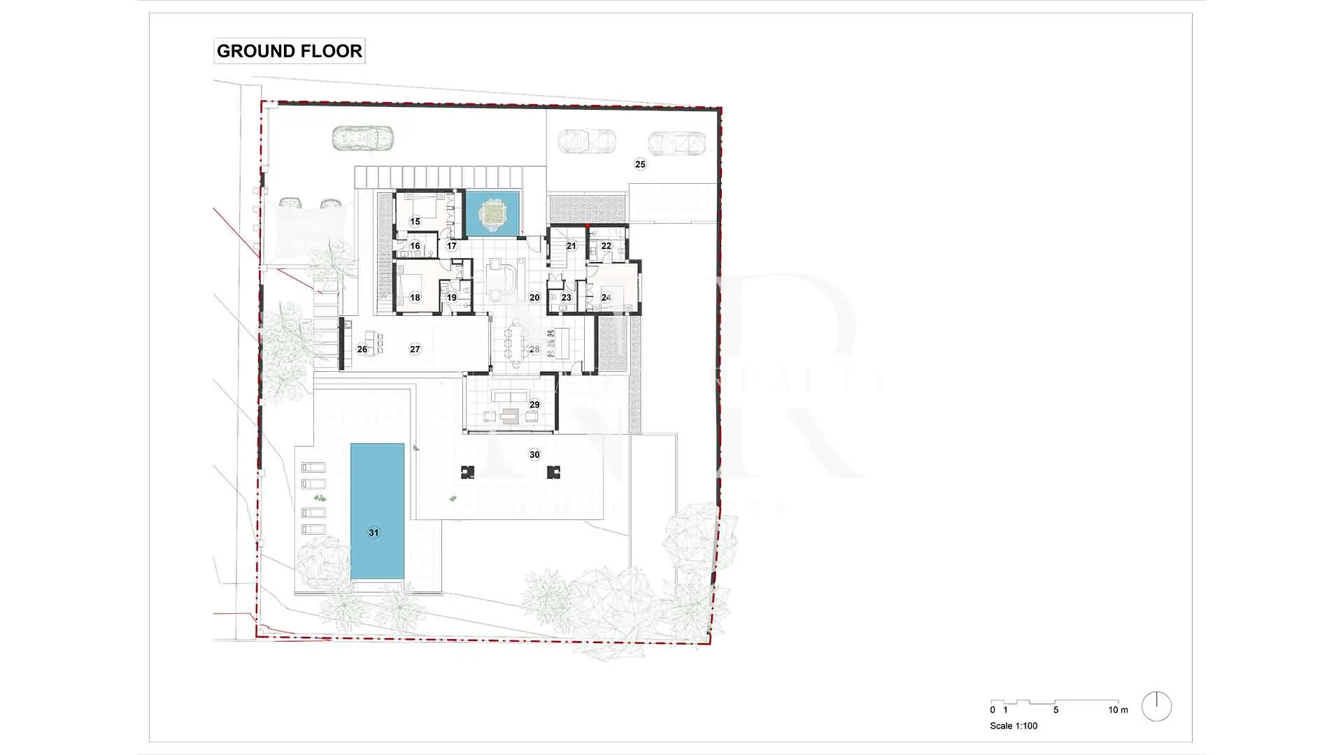
Répartie sur trois niveaux, la villa offre six chambres et cinq salles de bains, offrant des espaces lumineux et parfaitement agencés. Le rez-de-chaussée comprend un spacieux salon-salle à manger avec accès aux terrasses, une cuisine design équipée d’appareils Siemens, trois chambres avec salle de bains privative et des toilettes invités. L’étage supérieur est entièrement dédié à la suite parentale, qui dispose d’un dressing, d’une élégante salle de bains et de deux terrasses privées avec vue sur la mer et jacuzzi. L’étage inférieur est conçu comme un espace de loisirs et de bien-être : il comprend une piscine intérieure, une salle de sport entièrement équipée, un hammam, une cave à vin climatisée, une salle de divertissement insonorisée avec bar et grand espace TV, ainsi que deux chambres partageant une salle de bain, idéale pour les invités.
Les espaces extérieurs comprennent un jardin paysager avec divers coins salon, un barbecue, un terrain de pétanque et une piscine d’eau salée innovante gérée par un système intelligent KNX. La propriété dispose d’un grand parking privé, d’une buanderie et de généreux espaces de rangement. L’utilisation de matériaux nobles tels que le bois, le marbre et la céramique haut de gamme renforce son caractère élégant et intemporel.
Elle est située à quelques minutes de prestigieux parcours de golf tels que Los Naranjos, Aloha et Las Brisas, ainsi que d’écoles internationales comme l’Aloha International College. Puerto Banús et les plages du Golden Mile sont à quelques minutes en voiture.
Cette propriété est à vendre par l’intermédiaire de cette agence immobilière forte de plus de 30 ans d’expérience à Marbella Centre et sur le Golden Mile.
- Référence
- 163-04449P
- Type
- Villa
- Localisation
- Nueva Andalucia, Marbella
- Chambres
- 6
- Bains
- 5
- Salles de bains attenantes
- 4
- Construit m²
- 887
- Terrasse m²
- 342
- Parcelle m²
- 1.503
- Piscine
- Privé
- Jardin
- Privé
- Garage
- Privé
- Communauté
- 80 €
- Ordures
- 278 €
- Ibi
- 2.458 €
- Année de construction
- 1.982
- Orientation
- S
Caractéristiques additionnelles
- Alarme
- Barbecue
- Cave à vin
- Climatisation
- Cuisine entièrement adaptée
- Entièrement meublé
- GarageIncludedInPrice
- Golf à proximité
- InsideGolfResort
- Jacuzzi
- Neuf
- Piscine climatisée
- Placards
- Plancher en bois
- Portes en verre
- Première ligne de golf
- Proche des écoles
- Près de la montagne
- Récemment rénové
- Salle de cinéma
- Salle de gym
- Sauna
- Sols en céramique
- Terrasse couverte
- Terrasse découverte
- Terrasse privée
- Toilette d’invités
- Vue montagne
- Vue sur la piscine
- Vue sur le golf
- Vue sur le jardin
Propriétés Similaires
Villa entièrement rénovée dans l’Urbanisation La Cerquilla à vendre
- 5 Chambres,
- 5 Bains,
- 3.062 m² Parcelle ,
Villa de golf de première ligne à Los Naranjos Golf Club à vendre
- 7 Chambres,
- 8 Bains,
- 1.824 m² Parcelle ,
- 790 m² Construit
Villa nouvellement construite à Los Naranjos Hill Club à vendre
- 5 Chambres,
- 5 Bains,
- 921 m² Parcelle ,
- 503 m² Construit
Villa au design unique à Nueva Andalucia à vendre
- 5 Chambres,
- 5 Bains,
- 909 m² Parcelle ,
- 1.047 m² Construit


