Maison mitoyenne à vendre dans le lotissement Los Olivos, en première ligne de golf
Maison mitoyenne à vendre dans le lotissement Los Olivos, en première ligne de golf. Située dans l’un des quartiers les plus prisés de Marbella, cette propriété se trouve dans la prestigieuse vallée du golf, au sein de la communauté fermée, sûre et tranquille de Los Olivos, à Aloha Golf. Cette maison mitoyenne a été récemment rénovée, alliant le style méditerranéen traditionnel à une approche contemporaine basée sur des lignes épurées, des matériaux nobles et des espaces baignés de lumière. Son emplacement offre une vue imprenable sur les terrains de golf et est entouré de nature, avec un accès facile à tous les services et au style de vie exclusif qui caractérise Nueva Andalucía.
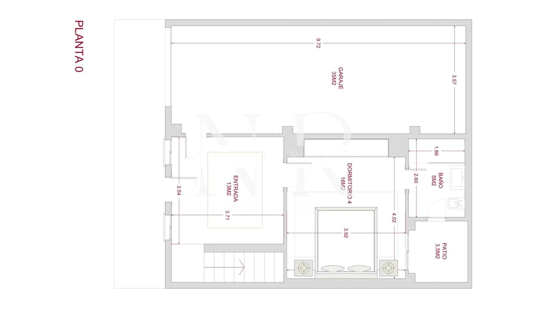
D’une superficie construite de 227 m², la maison est conçue pour offrir confort, intimité et fonctionnalité. Elle dispose de quatre chambres et six salles de bains réparties de manière efficace, idéales pour les familles ou pour ceux qui recherchent une résidence de vacances pouvant accueillir des invités. Au rez-de-chaussée, la cuisine moderne équipée d’appareils électroménagers Siemens s’intègre parfaitement à la salle à manger et au salon, d’où l’on accède à une terrasse couverte et à un jardin privé orienté vers la vue environnante. Chaque recoin est optimisé pour maximiser l’entrée de la lumière naturelle, avec des finitions chaleureuses telles que du bois et de la céramique de haute qualité.
L’étage supérieur comprend une suite parentale avec salle de bain privée et accès à une grande terrasse privée, parfaite pour profiter du coucher de soleil sur le paysage andalou. Deux chambres supplémentaires se partagent une salle de bain complète, offrant ainsi de l’espace pour la famille ou les invités. Au rez-de-chaussée, une chambre avec salle de bain attenante et accès à un patio anglais ajoute un espace calme idéal comme bureau ou chambre d’amis. La propriété dispose également d’un parking privé, d’une piscine communautaire, de jardins bien entretenus et d’un emplacement imbattable à quelques minutes seulement de Puerto Banús, de la plage et d’écoles internationales prestigieuses.
Située dans un emplacement privilégié, à proximité de prestigieux terrains de golf tels que Aloha, elle est idéale pour les amateurs de ce sport. Elle est également proche de l’exclusif Aloha College, l’une des écoles les plus réputées de la région, et à quelques minutes de Puerto Banús, avec sa vie nocturne animée, ses boutiques de luxe et ses restaurants haut de gamme.
Cette propriété est en vente dans cette agence immobilière de Marbella qui a plus de 30 ans d’expérience dans le centre de Marbella et sur la Milla de Oro.
- Référence
- 163-04338P
- Type
- Maison de Ville
- Localisation
- Los Olivos, Marbella
- Chambres
- 4
- Bains
- 4
- Salles de bains attenantes
- 2
- Construit m²
- 269
- Terrasse m²
- 46
- Piscine
- Communautaire
- Jardin
- Privé
- Garage
- Privé
- Communauté
- 295 €
- Ibi
- 1.880 €
- Année de construction
- 2.004
- Orientation
- O
Caractéristiques additionnelles
- Buanderie
- Climatisation
- Cuisine entièrement adaptée
- Golf à proximité
- InsideGolfResort
- Neuf
- Placards
- Portes en verre
- Première ligne de golf
- Proche des écoles
- Près de la montagne
- Près de la ville
- Récemment rénové
- Services de proximité
- Terrasse couverte
- Terrasse découverte
- Terrasse privée
- Toilette d’invités
- Transport proche
- Vue sur le jardin
Propriétés Similaires
Maison mitoyenne entièrement rénovée à vendre dans le lotissement La Rinconada
- 4 Chambres,
- 3 Bains,
- 230 m² Construit


