Villa neuve à vendre à La Resina Golf
Villa neuve à vendre à La Resina Golf. Située dans le cadre prestigieux de La Resina Golf, l’un des quartiers les plus calmes et les mieux établis d’Estepona, cette villa neuve se distingue par son design avant-gardiste et son intégration harmonieuse dans le paysage. Conçue par l’architecte Francisco Martínez Galván, la propriété combine des lignes épurées, des matériaux nobles et une distribution pensée pour maximiser le confort et la connexion avec l’extérieur. Située sur un terrain surélevé, elle offre une vue imprenable sur la mer Méditerranée et le terrain de golf, créant un environnement idéal pour vivre ou profiter d’une résidence secondaire haut de gamme.
L’entrée privée mène directement au toit, où une spectaculaire terrasse panoramique a été conçue. Cet espace impressionne non seulement par sa vue, mais comprend également un espace détente avec jacuzzi et barbecue préinstallé, idéal pour les événements sociaux ou simplement pour profiter du coucher de soleil.
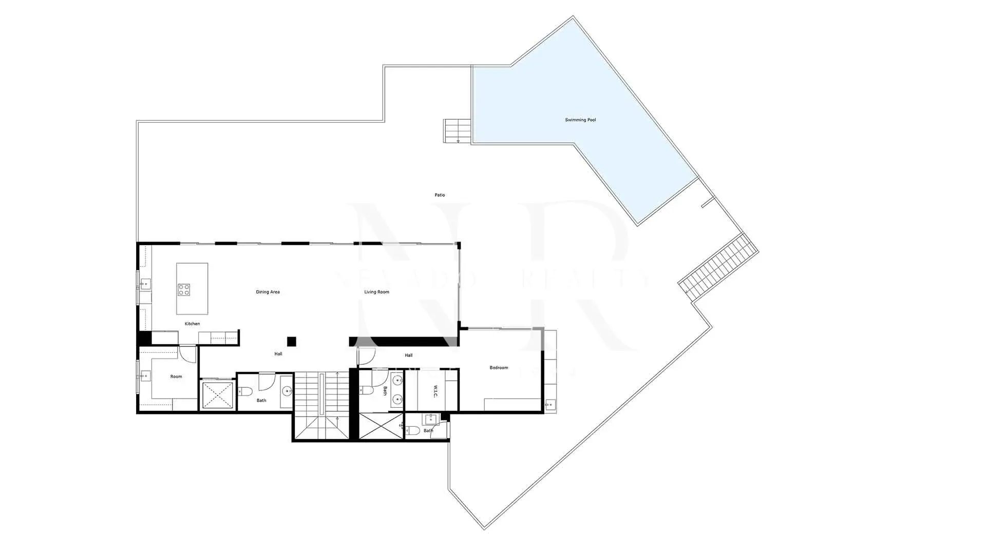
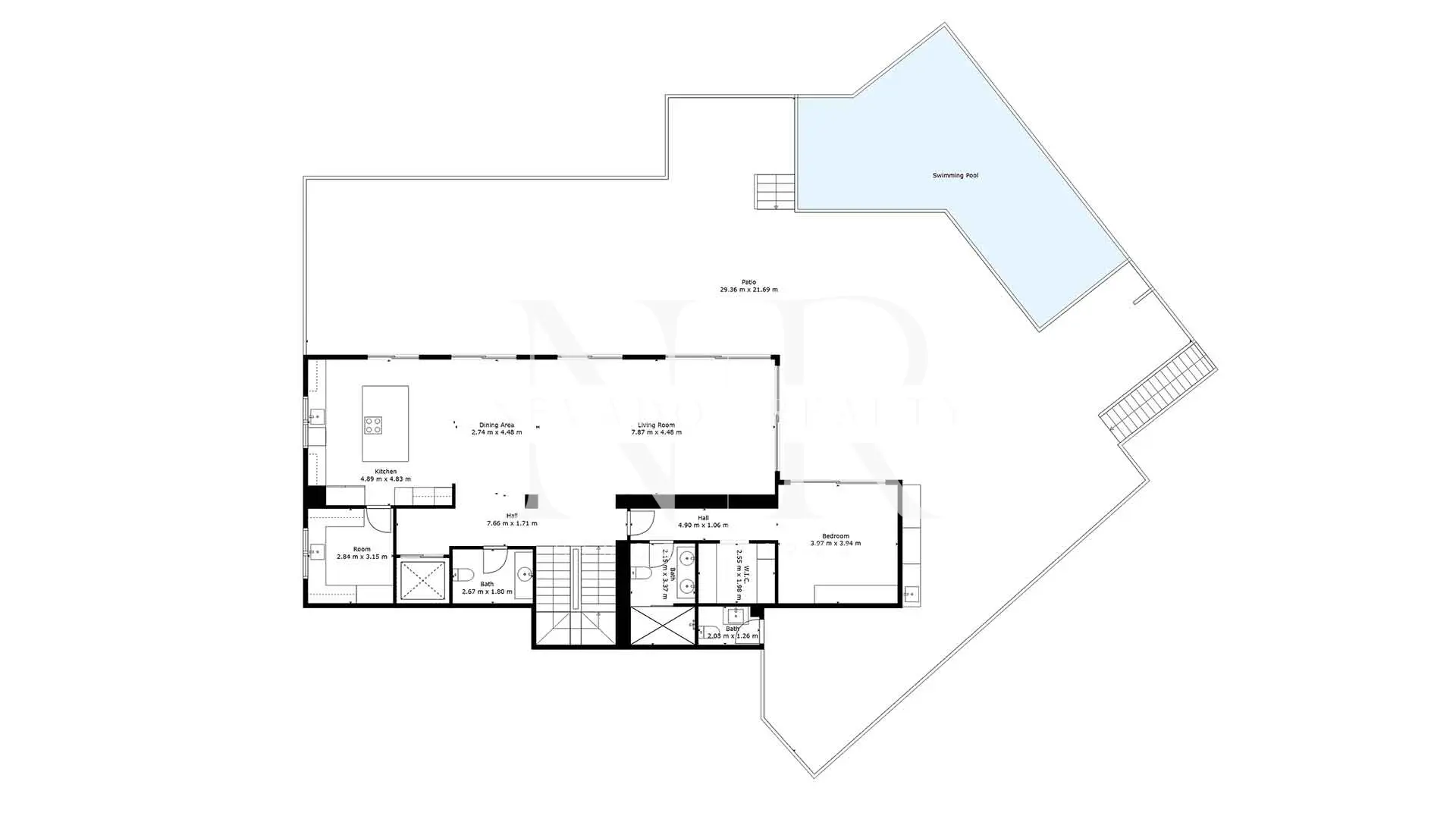
Au rez-de-chaussée, nous trouvons une distribution ouverte qui intègre le salon, la salle à manger et une élégante cuisine avec un îlot central en pierre naturelle. Une deuxième cuisine d’appoint offre une plus grande fonctionnalité au quotidien ou lors de réceptions.
L’espace extérieur est complété par une piscine à débordement d’eau salée, entourée de jardins matures et d’une végétation tropicale qui apportent intimité et sérénité. Au même niveau se trouve une chambre d’amis avec salle de bains attenante.
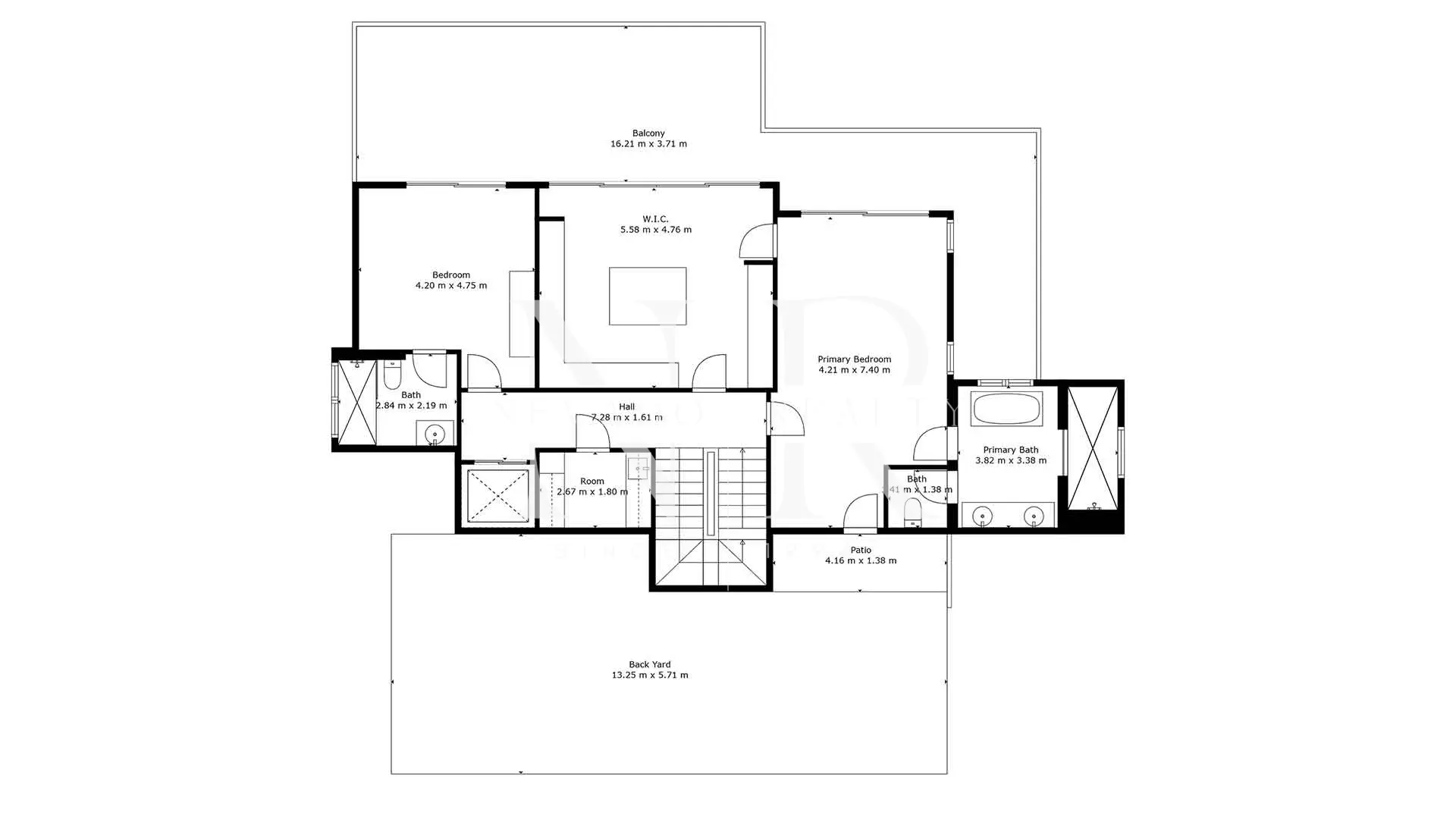
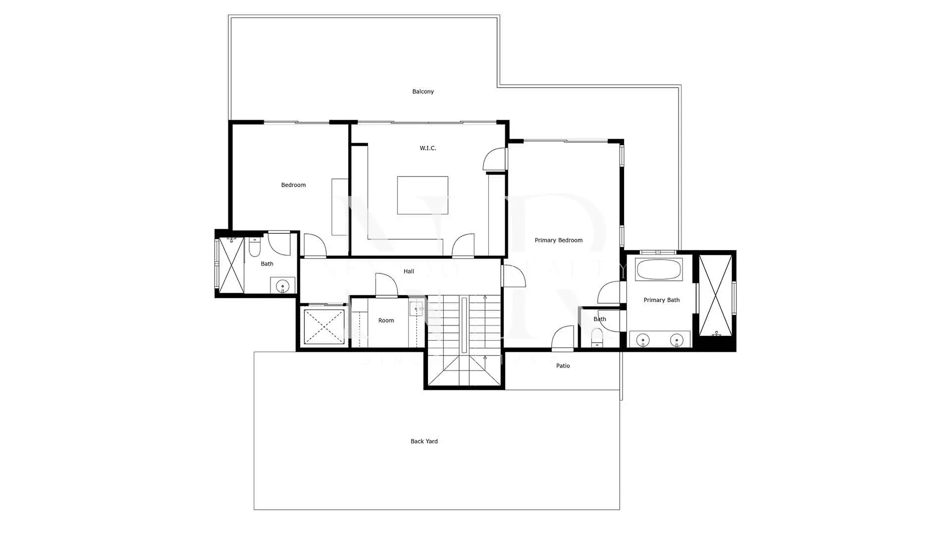
L’étage principal est entièrement dédié au repos. La suite principale dispose d’une terrasse privée avec une vue imprenable sur la mer, d’un dressing indépendant et d’une salle de bains design avec des finitions en marbre et une baignoire îlot. Une deuxième chambre, également en suite, complète cet étage avec une vue sur le jardin et des matériaux haut de gamme.
Au sous-sol, la maison offre un vaste espace pouvant s’adapter à divers besoins : chambres supplémentaires, salle de sport, salle de cinéma ou espace spa personnalisé, le tout avec un accès direct au jardin. Équipée d’un système domotique préinstallé et d’un son surround au plafond, cette villa représente une fusion parfaite entre luxe moderne, efficacité et bien-être.
Son emplacement privilégié la place à quelques minutes des services haut de gamme, des terrains de golf tels que El Paraíso Golf Club et Atalaya Golf, et des centres de Puerto Banús et Estepona.
À quelques minutes de l’école internationale d’Estepona, elle garantit un accès facile à des options éducatives de premier ordre. De plus, des établissements prestigieux tels que l’Aloha International College se trouvent également à environ 15 minutes en voiture, ce qui en fait un choix idéal pour les familles qui privilégient une éducation de haute qualité.
Cette villa est en vente dans cette agence immobilière de Marbella, experte dans le centre de Marbella et la Milla de Oro.
- Référence
- 163-04358P
- Type
- Villa
- Localisation
- La Resina Golf, Estepona
- Chambres
- 4
- Bains
- 4
- Salles de bains attenantes
- 3
- Construit m²
- 745
- Terrasse m²
- 313
- Parcelle m²
- 1.097
- Piscine
- Privé
- Jardin
- Privé
- Garage
- Privé
- Année de construction
- 2.023
Caractéristiques additionnelles
- Alarme
- Ascenseur
- Barbecue
- Buanderie
- Cave
- Climatisation
- Cuisine entièrement adaptée
- Excellent état
- Golf à proximité
- Piscine d’eau salée
- Près de la montagne
- Résidence fermée
- Terrasse couverte
- Terrasse découverte
- Terrasse privée
- Toilette d’invités
- Vue campagne
- Vue mer
- Vue montagne
- Vue sur la piscine
- Vue sur le jardin
Propriétés Similaires
Villa entièrement rénovée à vendre à Atalaya Golf
- 5 Chambres,
- 6 Bains,
- 1.843 m² Parcelle ,
- 934 m² Construit
Villa entièrement rénovée à vendre dans le lotissement Monte Biarritz
- 6 Chambres,
- 4 Bains,
- 1.256 m² Parcelle ,
- 448 m² Construit
Villa moderne à vendre à El Paraíso
- 5 Chambres,
- 5 Bains,
- 808 m² Parcelle ,
- 656 m² Construit
Villa neuve à vendre à El Paraíso
- 5 Chambres,
- 5 Bains,
- 807 m² Parcelle ,
- 628 m² Construit


