Villa en La Cerquilla de nueva construcción en venta
Villa en La Cerquilla de nueva construcción en venta. Enclavada en una de las urbanizaciones más exclusivas de Marbella, esta villa representa una extraordinaria combinación de diseño contemporáneo, elegancia arquitectónica y confort moderno. Situada en el corazón del codiciado Valle del Golf de Nueva Andalucía, esta impresionante villa en construcción ha sido diseñada por el prestigioso estudio Jacobsen Arquitectura.
Su arquitectura incorpora materiales naturales y líneas limpias que se funden perfectamente con el entorno mediterráneo, brindando un hogar sofisticado y en armonía con la naturaleza.
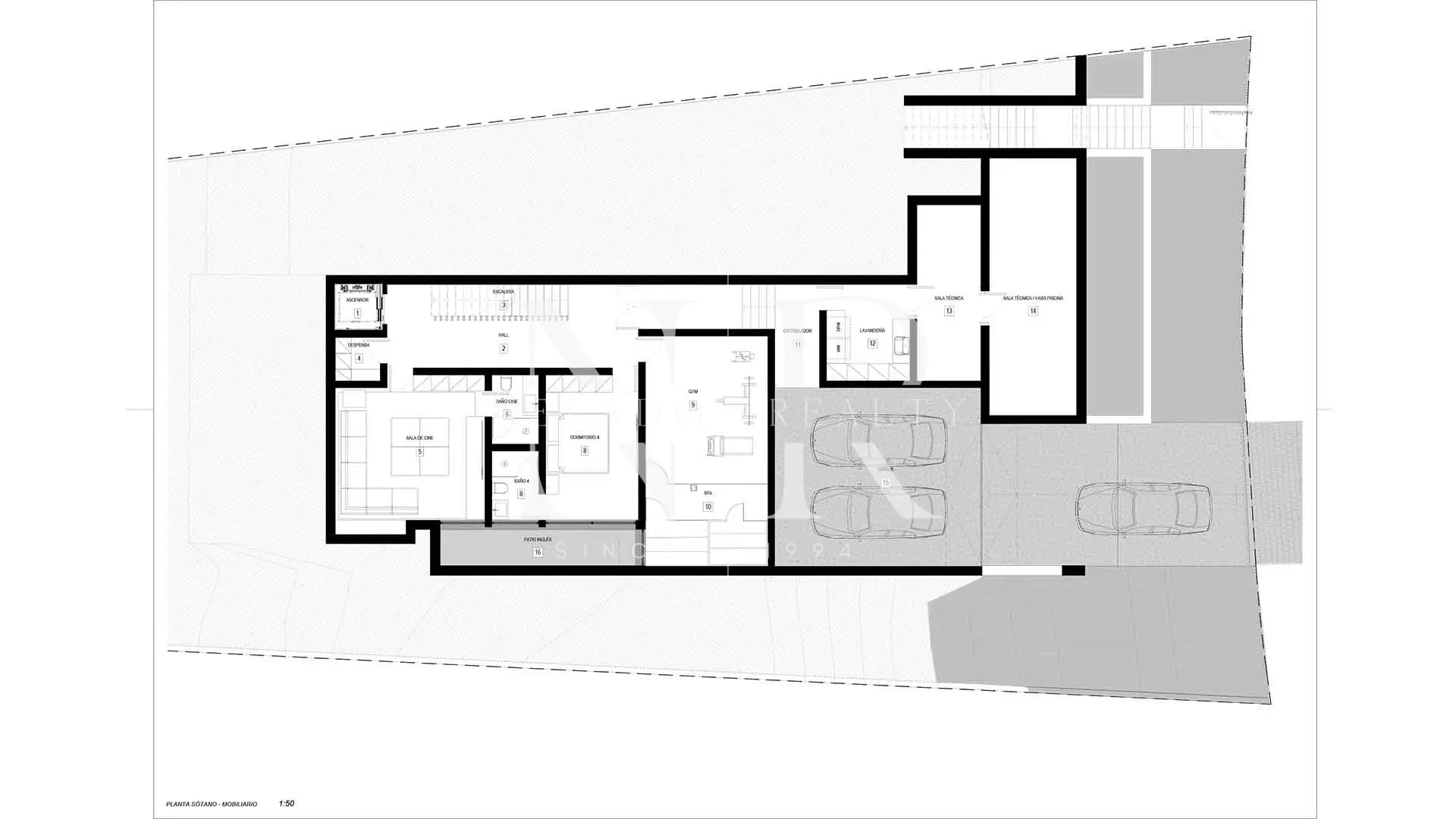
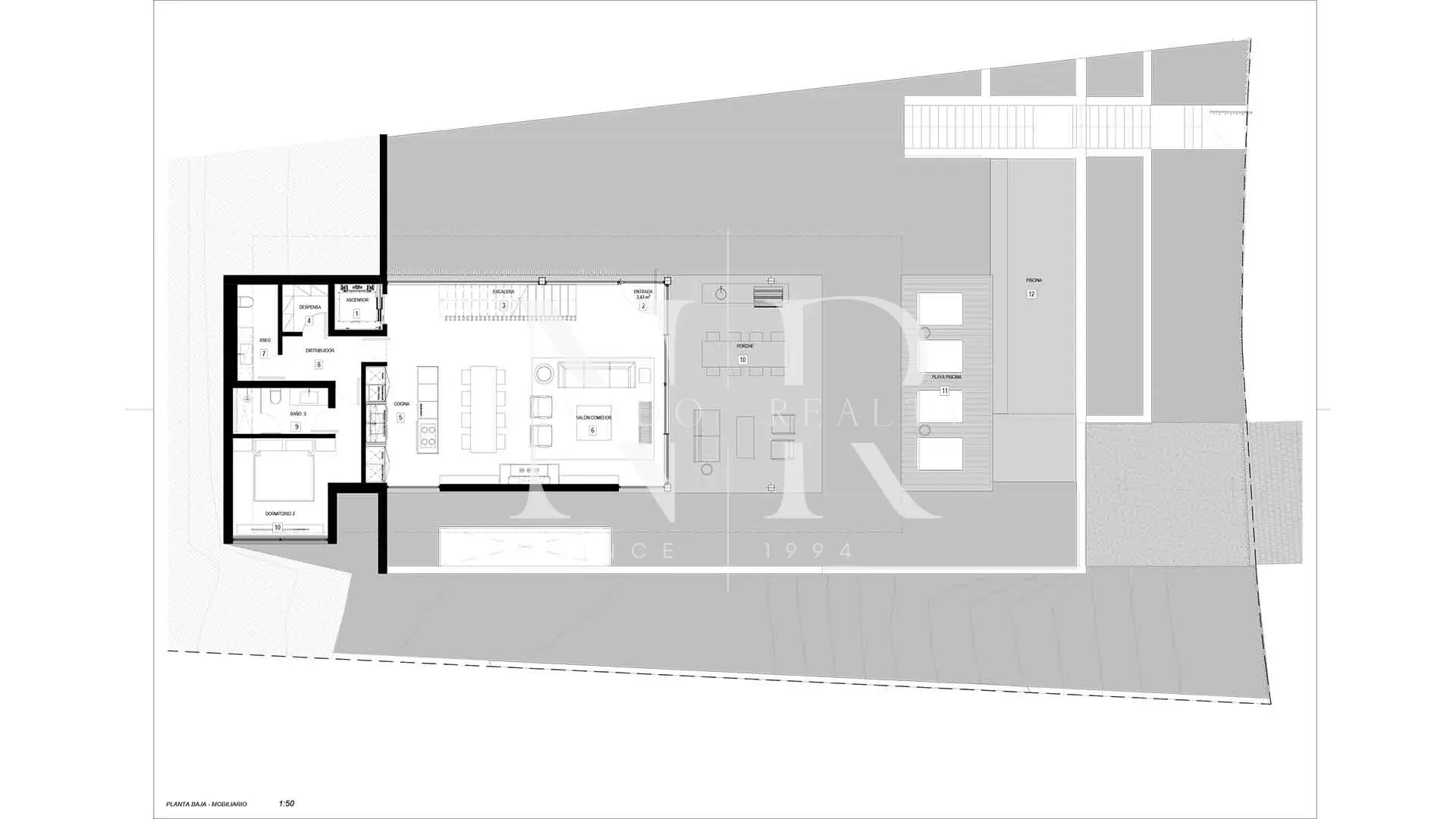
Distribuida en tres niveles sobre una parcela de 858 m², la vivienda contará con aproximadamente 454 m² construidos e incluirá cuatro amplios dormitorios en suite, además de un aseo de invitados. El diseño interior apuesta por la amplitud y la luz, con una planta abierta que conecta la cocina, el comedor y el salón principal a través de grandes ventanales de suelo a techo, que permiten la entrada de luz natural y la integración total con los espacios exteriores.
La suite principal, ubicada en el nivel superior, ofrece un ambiente íntimo con vestidor y baño privado, mientras que las habitaciones adicionales están pensadas para ofrecer privacidad y confort a familiares o invitados. Cada rincón ha sido concebido para equilibrar estética, funcionalidad y bienestar.
El nivel inferior de la propiedad incorpor múltiples espacios dedicados al ocio y la relajación. Aquí encontrarás una completa sala de entretenimiento, un despacho privado, una zona de spa y un gimnasio equipado con tecnología de última generación.
En el exterior, el diseño paisajístico rodea una elegante piscina privada, junto a una cocina exterior y varias terrazas ideales para celebrar encuentros sociales o relajarse al aire libre durante todo el año.
La cercanía al Valle del Golf hace de esta villa un paraíso para los aficionados al deporte. A escasos minutos encontrará el exclusivo Los Naranjos Golf Club y el Real Club de Golf Las Brisas. Se encuentra a tan solo 8 minutos del reconocido Aloha College, ideal para familias que buscan una educación internacional de primer nivel para sus hijos y a tan solo 12 minutos de la prestigiosa Escuela Internacional de Hostelería Les Roches Marbella.
La entrega de esta espectacular villa está prevista para el último trimestre de 2025, convirtiéndola en una inversión ideal tanto para quienes buscan una residencia principal como una segunda vivienda en la Costa del Sol.
Esta propiedad se encuentra a la venta en esta agencia inmobiliaria con más de 30 años de experiencia en Marbella Centro y Milla de Oro.
- Referencia
- 163-04237P
- Tipo
- Villa
- Localidad
- La Cerquilla, Marbella
- Dormitorios
- 4
- Baños
- 4
- Baños en suite
- 4
- Construido m²
- 553
- Terraza m²
- 99
- Parcela m²
- 858
- Piscina
- Privado
- Jardín
- Privado
- Garaje
- Privado
- Orientación
- NE
Características adicionales
- A estrenar
- Aseo para invitados
- Balneario – SPA
- Cerca de la ciudad
- Cerca de playa / mar
- Cerca del golf
- Cerca del puerto
- Cocina americana
- Cocina totalmente equipada
- Colegios cerca
- Cristal doble
- Gimnasio
- Próxima a la montaña
- Riego automático
- Sala de juegos
- Sótano
- Terraza cubierta
- Terraza descubierta
- Terraza privada
- Vestidor
- Vistas a la montaña
- Vistas a la piscina
- Vistas al jardín
- Vistas al mar
- Vistas panorámicas
Propiedades Similares
Villa en Aloha en primera línea de golf en venta
- 5 Dormitorios,
- 5 Baños,
- 1.112 m² Parcela,
- 753 m² Const.
Villa en Urbanización La Cerquilla completamente renovada en venta
- 5 Dormitorios,
- 5 Baños,
- 1.340 m² Parcela,
- 472 m² Const.
Villa en Las Lomas de Nueva Andalucía con vistas panorámicas al mar en venta
- 5 Dormitorios,
- 5 Baños,
- 1.950 m² Parcela,
- 743 m² Const.
Villa en Nueva Andalucía completamente reformada en venta
- 5 Dormitorios,
- 6 Baños,
- 1.005 m² Parcela,
- 520 m² Const.


